AG贵宾会

行业动态

了解最新公司动态及行业资讯

土壤热脱附高含油油基危废处理装置

2018-11-09 00:50:46 330 编辑:admin 来源:本站
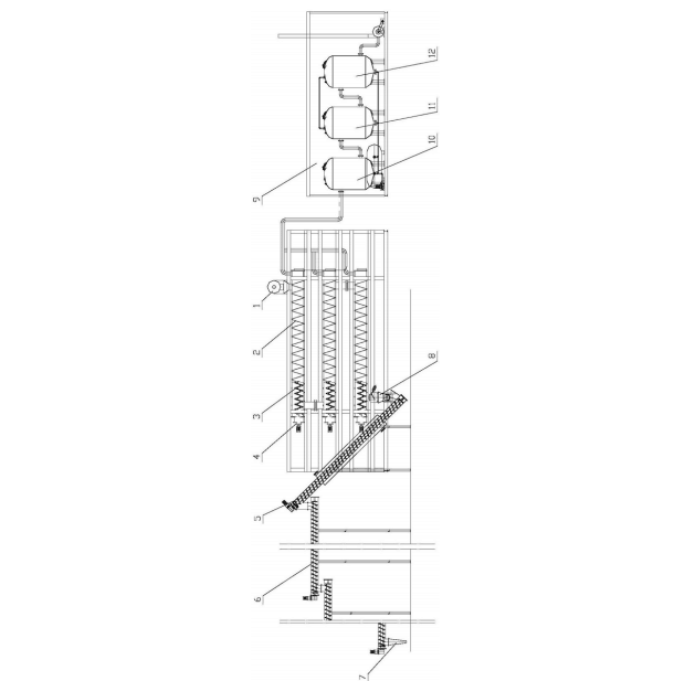
    目前油田企业采用的油基危废处理装置,由于采用水平串联反应釜,物料在反应 釜之间运移磨阻大,导致传动设备扭矩增大,使用寿命短,生产效率低;另外,处理后的废渣 温度高,需要自然冷却后由人工运输到指定地点,冷却时间长、人工运输费时费力。 
    为了克服现有的油基危废处理装置上述的不足,本实用新型提供一种土壤热脱附高含 油油基危废处理装置,该热脱附高含油油基危废处理装置采用三级反应釜纵向叠置排列、 串联连接方式,利用重力,使处理物料自然下落至下一级反应釜,消除相应的磨阻,提高装 置生产能力,降低能耗;同时,可将油基危废处理后的高温灰渣冷却后直接运送到指定地 点,避免了人工运输,提高了工作效率。 
土壤热脱附

   本实用新型的技术方案是:一种土壤热脱附高含油油基危废处理装置,包括油基危废 反应釜、油气净化装置,所述油基危废反应釜外部边缘外设有电磁加热带,所述油基危废反 应釜底部出渣口处连接有密封装置,密封装置出口连接有提升装置 ,提升装置的上端连接 有远距离输送装置,远距离输送装置的末端固定有布袋除尘器;油基危废反应釜上部出液 口连接有油气净化装置。

30

装备制造经验

立即免费获取土壤修复方案

为用户提供及时、高效、便捷的服务

在线咨询
AG贵宾会环境希望与你携手,共创美好未来...
5